Gradu Varaždinu odobreno 4.896.000,00 kuna za projekt izgradnja i opremanje Dječjeg vrtića Hrašćica
U okviru Mehanizma za oporavak i otpornost za izgradnju, dogradnju, rekonstrukciju i opremanje predškolskih ustanova, a nastavno na Nacionalni plan oporavka i otpornosti 2021. - 2026. godine koji predviđa unaprjeđenje dostupnosti i učinkovitosti kvalitetnog i relevantnog obrazovanja, Grad Varaždin je 28. lipnja 2022. godine prijavio projekt Izgradnje i opremanja dječjeg vrtića Hrašćica s ciljem omogućavanja povećanja obuhvata djece koja sudjeluju u ranom i predškolskom odgoju i obrazovanju.
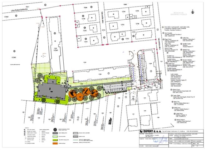
Projektom Izgradnja i opremanje dječjeg vrtića Hrašćica izgradit će se 4 nova dnevna boravka: 2 jaslička i 2 vrtićka dnevna boravka, odnosno 64 djece moći će, po prvi puta pohađati vrtić u Hrašćici.
U zaprimljenoj Obavijesti o statusu procjene projektnih prijedloga, stoji kako je projektni prijedlog uspješno prošao fazu procjene projektnih prijedloga u postupku dodjele bespovratnih sredstava te da će biti upućen u sljedeću fazu postupka dodjele, Odluku o financiranju. Ukupna bespovratna sredstva iznose 4.896.000,00 kn.
„Ovo je prvi od četrdesetak projekata koje je ova Gradska uprava, u svega nešto više od godinu dana, pripremila i prijavila. Posebno mi je drago što je to dječji vrtić u Hrašćici, naselju koje do sada nije imalo dječji vrtić, a koje sve više naseljavaju mlade obitelji. Nastojat ćemo i nadalje osmišljavati i provoditi projekte koji će pridonijeti ravnomjernom razvoju našega Grada, a posebno projekte namijenjene našim najmlađim sugrađanima.“ – izjavio je gradonačelnik Grada Varaždina dr. sc. Neven Bosilj.
Prethodni članak
Sljedeći članak
Čuvani s neba: Ova 3 znaka imaju najjaču anđeosku zaštitu i sreća ih prati u stopu
Zatreslo se jutros: Seizmološka služba objavila detalje
Krapina dobiva novu osnovnu školu: Veliki iskorak prema jednosmjenskoj nastavi i modernom obrazovanju
FOTO: U prometnoj nesreći ozlijeđeno više osoba
U Zagorje stižu nove kamere, načelnik PU krapinsko-zagorske: 'Njihov spektar je stvarno širok'
Dijelovi 9 mjesta i 2 grada u Zagorju uskoro ostaju bez struje
Zaboravite na brak ako ste vi i partner na ovom popisu – zvijezde predviđaju propast
Istraga DORH-a: Direktor prodao nekretnine tvrtke ispod tržišne cijene
Meteorolog otkriva: Evo što nas čeka za vikend i idućeg tjedna
LOŠA STATISTIKA: Čak 262 učenika pala na maturi iz predmeta iz kojeg su u školi imali peticu
VODIČ KROZ VALENTINOVO: Ljubav se slavi u Zagorju – uz vrhunsku gastronomiju
Zimi vam se magle prozori, a ljeti zrak stoji? I-Vent ventilacija s rekuperacijom to rješava efikasno – uz 7 godina garancije i čak 40% popusta
Dođite u Krapinu na predstavljanje rezultata velikog istraživanja
Zamagljeni prozori su prvi alarm: ignoriranje kondenzacije vodi ravno do plijesni
Ovaj stan u idealnom mjestu za život u Zagorju može biti vaš
