U Velikom Trgovišću počeli radovi na izgradnji sportskog kompleksa vrijednog čak pet milijuna kuna
Košarka, odbojka, skok u dalj, rukomet, odbojka na pijesku, stolni tenis, staze za trčanje, badminton i još puno toga bit će javno raspoloživi kompleks. 'Inače, na ovakav projekt spremamo se već dugo. Zapravo, radi se o potrebi koja više ne može čekati. Imamo dosta mladih koji trenutno nemaju gdje trenirati, a sada će imati svi priliku baviti se čime žele, kaže načelnik općine Veliko Trgovišće Robert Greblički
U središtu Velikog Trgovišću započeli su radovi na projektu vrijednom čak pet milijuna kuna od kojeg će koristi imati sportaši, rekreativci i svi stanovnici. Riječ je o sportskom centru sa svim sadržajima, odnosno s toliko sadržaja koliko ih u Zagorju nema na nekoliko igrališta zajedno.
Kompleks će biti gotov ove godine
'To je projekt iza škole između našeg postojećeg sportskog kompleksa igrališta i zgrade koju koriste strijelci i Sportsko društvo Hrvatski vuk i naši nogometaši. Zemljište je školsko tako da smo u ovaj projekt krenuli uz suglasnost osnivača škole, Krapinsko – zagorske županije. Vrijedan je oko pet milijuna kuna, prijavljen je na natječaj Ministarstva sporta, a ostalo će isfinancirati Općina – kaže načelnik Općine Veliko Trgovišće, Robert Greblički. Sufinanciranje ministarstva još nije odobreno, a od njega se očekuje oko milijun kuna, dok će ostala četiri milijuna platiti Općina. I dok bi netko pomislio, s obzirom na veliki projekt koji i puno košta, da će se graditi godinama, načelnik Greblički kaže kako se nada da će se ove godine privesti kraju.
Radovi su već počeli
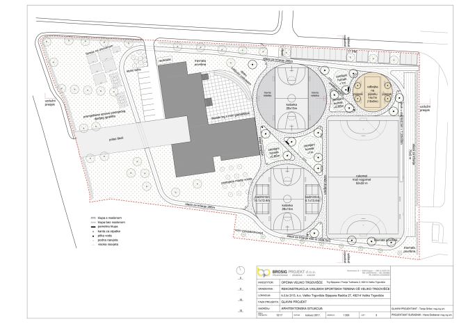
Radovi su krenuli, a kad će biti završen s ovim sportskim centrom moći će se koristiti svi: djeca škole, vrtića, mladi, sportske udruge. 'To će biti javno raspoloživi kompleks – kaže načelnik Greblički. A svima na korištenje tako će biti dostupni sadržaji kakvih u ovoj županiji nema. Već s jedne strane prilaza školi bit će sprave postojećeg dječjeg igrališta koje će se na to mjesto preseliti. Uz samu školu osigurani su prostori za stolni tenis te potrebna reciklaža, ali i travnate površine, ostat će postojeći mladi voćnjak, ozelenjeni zemljani nasip, a unutar toga izgradit će se školski trg s mini gledalištem. Dalje, na površini od 15.000 četvornih metara bit će čak dva košarkaška igrališta. Oko jednog s jedne i druge strane izgradit će se igrališta za badminton, a oko drugog travnate površine. Između dva košarkaška igrališta bit će zemljani humci. Slijedi, gledajući od škole prema nogometnom igralištu, pravo rukometno igralište, do njega igralište za odbojku na pijesku i pješčane površine za dječju igru. Dakako, unutar svega toga bit će uređene i stazice, ali i nekoliko staza za trčanje raznih duljina, 385, 400 i ravna atletska staza dužine 75, a širine pet metara. Svi nabrojani, ali i brojni drugi sadržaji popu mjesta za skok u dalj, start workouta ili novozasađenih voćnjaka i drvoreda ovaj će sportski centar doista uzdići sportske aktivnosti u Velikom Trgovišću na najvišu moguću razinu.
Sportski kompleks je potreba ove općine
'Inače, na ovakav projekt spremamo se već dugo. Zapravo, radi se o potrebi koja više ne može čekati. Imamo dosta mladih koji trenutno nemaju gdje trenirati, a sada će imati svi priliku baviti se čime žele, kaže načelnik Greblički, a članovi brojnih klubova su prezadovoljni činjenicom da je gradnja već počela.
Prethodni članak
Sljedeći članak
Opljačkan poznati trgovački centar u Zagorju
Nebo se otvara 11. veljače: Ova 3 znaka pogađa neočekivan priljev novca, sve se mijenja preko noći
STRAŠNO: Pokušao silovati štićenicu doma za odrasle u Zagorju
TUŽNA VIJEST: Preminuo legendarni nogometni trener
Helikopter i hitna u Zagorju
Nezaposleni mladić (22) izletio s ceste, zabio se u parkirani Golf pa u ogradu crkve – kaznu će platiti njegovi roditelji
Sve se mijenja u posljednjem trenutku: Za ova 4 znaka kraj veljače donosi veliko bogatstvo i kartu za novu budućnost
Najmoćniji i najinteligentniji ljudi rađaju se u ova 3 znaka - imaju uvijek posebnu sudbinu
Prometna nesreća: Sudar motora i auta, motorist prevezen u bolnicu
Nevjerojatno otkriće: Policajac iz službenog sefa krao drogu, pokrenut disciplinski postupak
Kraj starim metodama prozračivanja: 2026. donosi toplu i učinkovitu zaštitu od vlage i plijesni
Kako stoje naše rijetke vrste? Predstavljeni rezultati monitoringa za 2025. godinu
VODIČ KROZ VALENTINOVO: Ljubav se slavi u Zagorju – uz vrhunsku gastronomiju
Zimi vam se magle prozori, a ljeti zrak stoji? I-Vent ventilacija s rekuperacijom to rješava efikasno – uz 7 godina garancije i čak 40% popusta
Dođite u Krapinu na predstavljanje rezultata velikog istraživanja
